Geräumiges Reiheneckhaus in Thon

Geräumiges Reiheneckhaus in Thon

Reserviert!

ca. 135 m² Wfl.

Beschreibung: 

Online Besichtigung: Reiheneckhaus Nürnberg Thon

Das angebotene Reiheneckhaus befindet sich in gewachsener und ruhiger Wohnlage in Thon im Nürnberger Norden. Das im Jahr 1987-89 errichtete Haus überzeugt durch eine durchdachte Grundrissgestaltung über drei Wohnebenen, eine angenehme Ecklage mit zusätzlicher Belichtung sowie ein familienfreundliches Raumkonzept. Das Grundstück umfasst ca. 229 m², die Gesamtwohnfläche beträgt ca. 135 m². Zwei Garagen gehören ebenfalls zum Objekt.

Besondere Highlights sind das großzügige Wellnessbad im Dachgeschoss mit Whirlpool-Badewanne sowie eine Sauna. Im Außenbereich lädt eine hochwertig überdachte Terrasse mit Pergola und Markise zum geschützten Aufenthalt im Freien ein – ideal für entspannte Stunden oder gesellige Abende.

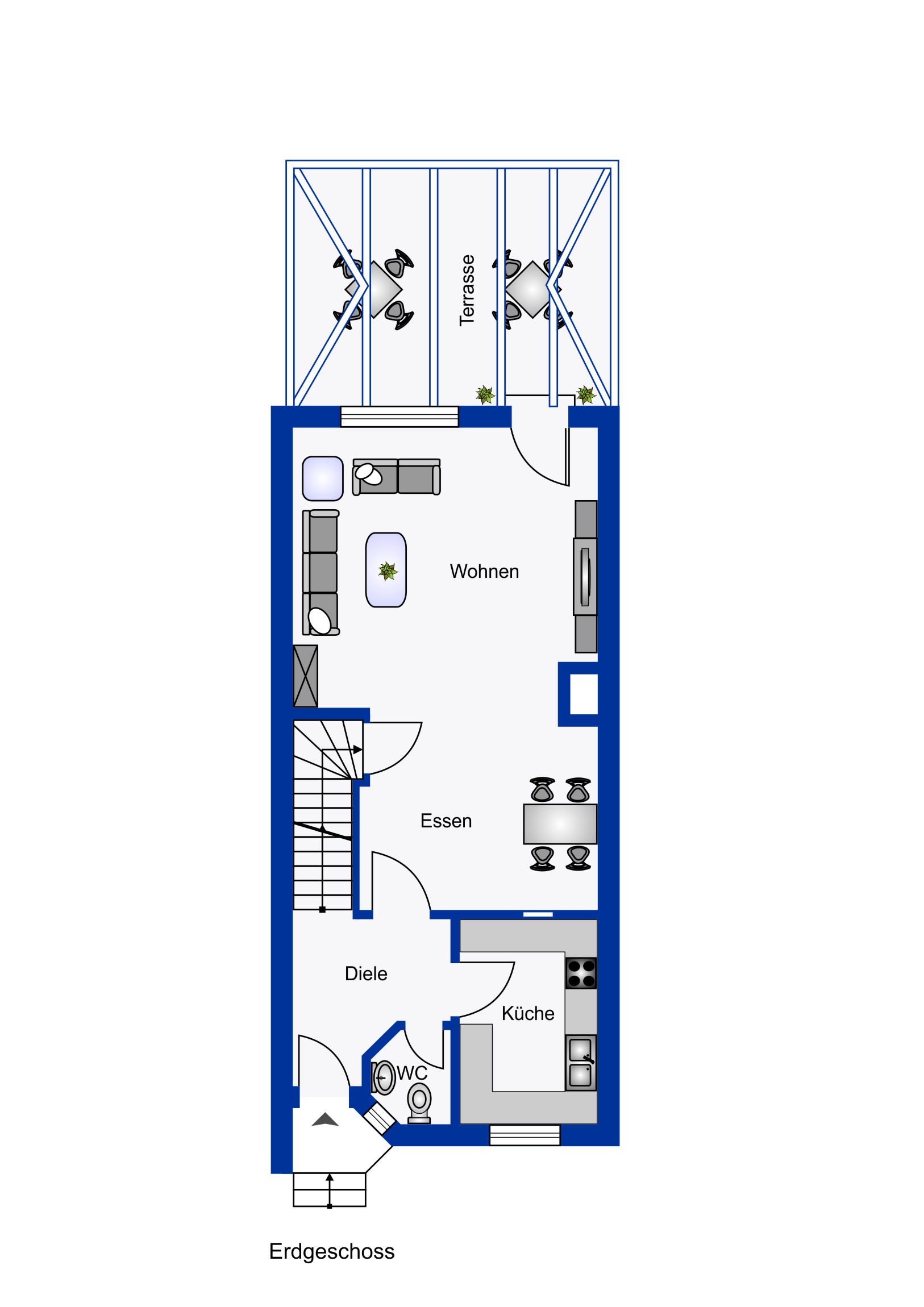
Im Erdgeschoss bildet der Wohnbereich das Zentrum des Hauses. Von hier aus erschließt sich der Essbereich mit direkter Verbindung zur Küche. Die Raumstruktur ist klar gegliedert und zugleich offen gestaltet, wodurch ein angenehmes Wohnambiente entsteht. Ergänzt wird diese Ebene durch eine Diele sowie ein Gäste-WC. Der direkte Zugang zur Terrasse erweitert den Wohnraum in den Außenbereich.

Das Obergeschoss bietet zwei großzügig geschnittene Zimmer, die sich flexibel als Kinder-, Arbeits- oder Gästezimmer nutzen lassen. Ein Badezimmer sowie ein zentral angeordneter Flur runden diese Etage funktional ab und machen sie ideal für den Familienalltag.

Im Dachgeschoss befindet sich der private Rückzugsbereich. Neben dem Schlafzimmer steht hier ein außergewöhnlich großzügiges Wellnessbad mit Whirlpool-Badewanne zur Verfügung. Ergänzend wurde eine Sauna integriert, wodurch diese Ebene einen besonderen Erholungswert bietet und das Haus um einen echten Komfortfaktor erweitert.

Die Beheizung erfolgt über eine Gas-Zentralheizung. Zusätzlich zur Wohnfläche steht ein wohnraumähnlich ausgebauter Spitzboden (nicht beheizt, nicht in der Wohnfläche enthalten) zur Verfügung, der sich vielseitig nutzen lässt. Im Kellergeschoss befindet sich ein Hobbyraum, der weiteren Platz für Freizeit, Fitness oder individuelle Nutzungsmöglichkeiten bietet.

Die hochwertig überdachte Terrasse mit Pergola und Markise schafft einen geschützten Außenbereich und erhöht die Aufenthaltsqualität deutlich. Die Ecklage des Hauses sorgt zudem für eine gute Belichtung und eine angenehme Grundstückssituation.

Dieses Reiheneckhaus vereint eine solide Bauweise, eine familiengerechte Raumaufteilung und besondere Ausstattungsmerkmale wie Wellnessbad, Sauna und hochwertige Terrassenüberdachung.

Die Kombination aus Wohnkomfort, zusätzlicher Nutzfläche und zwei Garagen macht die Immobilie zu einem attraktiven Angebot für Familien oder Paare mit Platzbedarf, die ein ruhiges und gepflegtes Wohnumfeld im Nürnberger Norden schätzen.

Merkmale zusammengefasst:

  • Top Lage in Thon
  • Großzügiges Reiheneckhaus 
  • 2 Vollgeschosse plus KG und DG
  • Ausgebauter Spitzboden
  • Großes Wohnzimmer mit Zugang Terrasse
  • Überdachte Terrasse mit Pergola und Markise
  • 2 Bäder und ein Gäste WC im EG
  • Wellness Bad mit Whirlpoolwanne und Sauna 
  • Schöner Garten mit Süd Ausrichtung
  • das Haus ist vollständig unterkellert
  • Großzügiger Hobbyraum mit Heizkörper
  • Zwei Einzelgarage mit Gartenzugang im Kaufpreis enthalten
  • die Beheizung erfolgt über eine Gas Zentralheizung

Aufteilung:

Erdgeschoss:

  • Windfang/Diele
  • Küche
  • Wohn- und Esszimmer mit angrenzender Terrasse und Garten
  • Gäste WC

1. Obergeschoss:

  • Schlafzimmer
  • Kinderzimmer
  • Bad

Dachgeschoss:

  • Schlafzimmer
  • Wellness Bad mit Sauna

Spitzboden: 

  • Nutzfläche

Kellergeschoss:

  • Flur
  • Hobbyraum
  • Waschküche
  • Heizungsraum mit Anschlussraum
  •  

Weiteres:

2 x PKW Garage direkt am Grundstück mit Zugang zum Garten

Grundrisse:

Lage:

Das Reiheneckhaus befindet sich im beliebten Nürnberger Stadtteil Thon im Norden der Stadt. Die Umgebung ist geprägt von einer gewachsenen, überwiegend wohnwirtschaftlichen Bebauung mit Ein- und Mehrfamilienhäusern. Einkaufsmöglichkeiten für den täglichen Bedarf, Bäckereien, Ärzte, Schulen und Kindergärten sind im näheren Umfeld vorhanden und gut erreichbar. Die Lage bietet eine angenehme Kombination aus ruhigem Wohncharakter und gleichzeitig sehr guter infrastruktureller Versorgung – ein Standort, der insbesondere für Familien attraktiv ist. Grünzüge im Umfeld sowie das nahegelegene Knoblauchsland bieten zusätzliche Freizeit- und Erholungsmöglichkeiten.

Die Verkehrsanbindung ist gut. Die Straßenbahn Haltestelle „Schleswiger Straße“ befindet sich in kurzer fußläufiger Entfernung und bietet eine schnelle Anbindung an das Nürnberger ÖPNV-Netz sowie an die Straßenbahn-Endhaltestelle „Am Wegfeld“ (Linie 4) mit direkter Verbindung in die Innenstadt und zum Hauptbahnhof. Der Flughafen Nürnberg ist in wenigen Fahrminuten erreichbar. Über die nahegelegene B4 sowie die Anschlussstellen zur A3 und A73 besteht zudem eine sehr gute Anbindung an das regionale und überregionale Straßennetz, insbesondere in Richtung Erlangen, Fürth und Nürnberger Innenstadt.

Karte:

Sie sehen gerade einen Platzhalterinhalt von Google Maps. Um auf den eigentlichen Inhalt zuzugreifen, klicken Sie auf die Schaltfläche unten. Bitte beachten Sie, dass dabei Daten an Drittanbieter weitergegeben werden.

Mehr Informationen

Was unsere Kunden über uns berichten

Profilbild von „Andreas B.“
Andreas B.
10:01 02 Mar 26
Der faire Makler wird seinem Namen wahrlich gerecht. Die Herren Reinhart und Müller haben uns in der gesamten Zeit vom 1.Termin bis zum Abschluss bestens betreut. Absolut professionell, kompetent, zuverlässig und freundlich. Klare Weiterempfehlung!
Profilbild von „Reinhard K.“
Reinhard K.
13:54 27 Feb 26
Hervorragende Betreuung und Beratung. Immobilienmakler Dipl.-Ing. (FH) Christian Reinhart hat uns definitiv sehr geholfen, unsere Erwartungen zu erfüllen. 5 Sterne!
Profilbild von „Lukas S.“
Lukas S.
08:24 24 Feb 26
In kurz:
Bisher einer der besten Makler. Klare Empfehlung für Nürnberger!

In lang:
Ich habe nun nicht so umfangreiche Erfahrungen mit Maklern (bisher mit 9), aber bei 3 Maklern bin ich bis zum Kaufabschluss einer Immobilie gegangen und ich bin mit obigen Maklerbüro für Nürnberg vollstens zufrieden! Sowohl im Erstkontakt als auch der nachfolgenden Kommunikation war Herr Müller sehr schnell und kompetent unterwegs. Fragen wurden prompt beantwortet wie auch das Einholen von separaten Dokumenten. Die Dokument-Zusammenstellung im Vorfeld zum Immobilienkauf war auch ideal und die gesamte Begleitung bis zum Notar (und sogar darüber hinaus) verlief reibungslos. Was bleibt da noch zu sagen? Wenn ein Makler in Nürnberg, dann dieser!
Profilbild von „Luisa Z.“
Luisa Z.
14:30 08 Feb 26
Herr Lucas Müller war der vermittelnde Makler für das Haus, das wir im vergangenen Jahr gekauft haben. Von Anfang an hat er einen sehr kompetenten und freundlichen Eindruck gemacht. Auf Anfrage haben wir immer zügig und zuverlässig eine Antwort erhalten, die Kommunikation war freundlich und transparent. Wir haben uns von der Besichtigung bis zur Schlüsselübergabe stets gut aufgehoben gefühlt. Wir sprechen daher eine uneingeschränkte Empfehlung aus und bedanken uns sehr für die angenehme Zusammenarbeit.
Profilbild von „Dejan Z.“
Dejan Z.
10:42 13 Jan 26
Alles war super, sehr verantwortungsvoll und immer hilfsbereit. Alles verlief schnell und ohne Schwierigkeiten. Alles, was von Seiten des Maklers nötig war, wurde in kürzester Zeit erledigt. Von Herzen kann ich ihn/sie weiterempfehlen.
Profilbild von „A R“
A R
14:04 08 Jan 26
Profilbild von „Oktavian O.“
Oktavian O.
05:13 12 Dec 25
Die Zusammenarbeit mit Herrn Reinhart war vom ersten Moment an ausgezeichnet. Die Begleitung war stets professionell, verständlich und äußerst zuverlässig. Hier merkt man: Service macht den Unterschied. Besonders beeindruckt hat mich, dass selbst nach einigen Jahren noch unkompliziert und mit echter Unterstützung auf meine Nachfragen eingegangen wurde. So etwas findet man heutzutage wirklich selten. Klare Empfehlung – ein Makler, der sich durch außergewöhnliche Kundenorientierung und nachhaltige Betreuung auszeichnet.
Profilbild von „Deon T.“
Deon T.
04:44 19 Oct 25
Christian und sein Team waren während des gesamten Prozesses absolut fantastisch. Wir standen in regelmäßigem Kontakt und sie standen mir jederzeit für alle Fragen zur Verfügung. Als Englischsprecher unterstützte mich Christian beim Übersetzen und Erklären aller Dokumente, um sicherzustellen, dass ich stets auf dem Laufenden war. Ich kann Herrn Christian Reinhart und sein Team wärmstens empfehlen.
Profilbild von „Sebastian T.“
Sebastian T.
19:56 18 Oct 25
Fair, ehrlich, freundlich und jederzeit offen für Hilfe und Unterstützung. Besser hätte es nicht laufen können - vielen Dank!
Profilbild von „Anonym A.“
Anonym A.
10:10 24 Jul 25
Volle 5 Sterne für ein sehr aufklärendes Telefonat. Ich habe eine Immobilie über einen anderen Immobilienmakler gekauft und die Abwicklung bzw. der Ablauf läuft nicht sehr rosig. Es sind zumindest eine Menge ungeklärter Fragen offen. Nichtsdestotrotz wurden mir alle Fragen auch bezüglich Risiken und Abläufe genau erläutert. Das Gespräch hat gute 15 Minuten gedauert und ich hatte das Gefühl, dass sich hier Zeit und Mühe gemacht wird mir weiterzuhelfen, obwohl die Immobilie über einen anderen Makler erworben wurde. Deswegen volle 5 Sterne. In Zukunft komme ich gerne vorbei bezüglich Kauf und Verkauf von Immobilien. Vielen Dank 👍
Profilbild von „Philipp T.“
Philipp T.
18:39 11 Jul 25
Die Zusammenarbeit mit Lucas Müller war rundum perfekt. Er ist nicht nur fachlich absolut kompetent, sondern es hat auch Menschlich einfach super gepasst. Man merkt sofort, dass er seinen Job mit Leidenschaft macht und dabei nie den Blick fürs Gegenüber verliert.

Er hat sich wirklich Zeit genommen, uns alles verständlich zu erklären und ist auf jede Frage geduldig eingegangen. Dabei war er stets professionell, freundlich und gleichzeitig angenehm unaufdringlich - was in der heutigen Zeit leider immer seltener wird. Wir haben uns zu jeder Zeit gut beraten und wohlgefühlt – genau so, wie man sich das wünscht.

Wenn es um Immobilien geht, würden wir jederzeit wieder mit Lucas Müller zusammenarbeiten. Eine klare Empfehlung!
Profilbild von „Arnaud R.“
Arnaud R.
09:52 10 Jul 25
Profilbild von „Florian H.“
Florian H.
14:06 14 Jun 25
Top Beratung, Super Unterstützung in allen Anliegen, sehr fair und freundlich. Tolle Betreuung vom Beginn bis zum Abschluss. Sehr empfehlenswert (Unser Makler war Hr. Lucas Müller).
Profilbild von „Gerda G.“
Gerda G.
11:07 14 Jun 25
Vielen Dank an alle Mitarbeiter des Unternehmens, die Zusammenarbeit, der Verlauf des Verkaufs der Immobilie, alles unkompliziert, vom Anfang bis zum Ende. Es war eine harmonische und zuverlässige Zusammenarbeit. Ich kann dieses Unternehmen nur als positiv empfehlen!
Profilbild von „Martina S.“
Martina S.
13:12 03 Jun 25
Im vergangenen Sommer 2024 hatte ich mit Herrn Makler Reinhart zu tun. Obwohl er wußte, dass er mit mir kein Geschäft machen würde, hat er sich mehrmals Zeit genommen, meine Fragen zu besprechen und zu diskutieren.Vielen Dank dafür!
Profilbild von „Cristmers“
Cristmers
08:45 23 May 25
Die Zusammenarbeit mit Herrn Reinhart (November 24 bis Januar 25) war von Anfang an geprägt von Aufrichtigkeit, Zuverlässigkeit, Freundlichkeit und Kompetenz. Die Wohnung konnte sehr schnell vermittelt werden und auch Herr Müller war stets erreichbar und offen.
Der ganze Ablauf war absolut strukturiert und so konnte mit der Vermarktung sehr rasch begonnen werden. Rückfragen wurden zeitnah beantwortet und Termine konnten flexibel vereinbart werden. Es wurde immer auf Fairness für alle Parteien geachtet.
Ich war rundum zufrieden und kann Herrn Reinhart nur empfehlen.
Profilbild von „susi J.“
susi J.
16:07 11 May 25
Sehr empfehlenswert. Wir waren mehr als zufrieden mit der Beratung. Das half uns eine
Wichtige Entscheidung zutreffen.
Vielen Dank dafür .
Jakupi
Profilbild von „Gustav G.“
Gustav G.
13:15 08 May 25
Sehr freundliche und kompetente Beratung. Auf jeden Fall weiterzuempfehlen!
Profilbild von „Renate W.“
Renate W.
10:51 15 Apr 25
Sehr nettes informatives Gespräch - ich bedanke mich herzlich für ihre Hilfe
Profilbild von „Victoria V.“
Victoria V.
06:14 08 Apr 25
Herr Christian Reinhard hat uns mit seiner professionellen, kompetenten und stets zuverlässigen Arbeitsweise überzeugt.
Auch Herr Müller hat uns unterstützt und dabei alles verständlich und geduldig erklärt. Beide standen uns jederzeit zur Seite, waren sehr gut erreichbar und haben uns mit großem Engagement durch den gesamten Prozess begleitet.

Die Zusammenarbeit war angenehm, strukturiert und von großem Vertrauen geprägt.
Wir sind rundum zufrieden und empfehlen Herrn Reinhard und Herrn Müller uneingeschränkt weiter.
Profilbild von „Katrin F.“
Katrin F.
11:00 22 Mar 25
Es ist wunderbar solche Profis an der Seite zu wissen, die so umfassend betreuen, geduldig Fragen beantworten und durch den Verkaufsprozess begleiten. Verlässlich, vertrauenswürdig - und freundlich. Danke.
Profilbild von „Sebastian“
Sebastian
20:31 05 Mar 25
Ich hatte eine telefonische Beratung mit Herrn Reinhart und war schwer begeistert von seiner Expertise. Er hat sich viel Zeit genommen, mir als Auswärtiger all meine Fragen zum Nürnberger Immobilienmarkt fundiert zu beantworten. Ich konnte von seiner langjährigen Erfahrung sehr profitieren. Gerne wieder!
Profilbild von „U. R.“
U. R.
13:03 11 Feb 25
Er hat mir, obwohl er für das Gebiet, wo mein Objekt steht, nicht zuständig sein kann, eine sehr hilfreiche Auskunft erteilt
Vielen Dank
Profilbild von „Hans L.“
Hans L.
16:31 27 Jan 25
Ich muss den Herren Reinhart und Müller ein großes Lob aussprechen, für ihre Professionalität, Ehrlichkeit, und ihre Hilfe, meine Immobilie erfolgreich zu verkaufen.
Die Kommunikation zwischen uns war vorbildlich, und von Anfang an fühlte ich mich willkommen.
Vom ersten Gespräch, bis zum reibungslosen und schnellen Abschluß war ich in guten Händen.
Ich empfehle Herrn Reinhart und seinen Kollegen Herrn Müller jederzeit weiter!!!
Vielen Dank für Alles
Profilbild von „Linda R.“
Linda R.
17:33 10 Jan 25
Absolute Spitzenleistung von Immobilienmakler Reinhart und seinem Mitarbeiter Herrn Müller beim Verkauf meiner Eigentumswohnung! Von Anfang an spürte man die jahrelange Erfahrung und Professionalität des Teams. Die Kommunikation war durchgehend erstklassig - schnelle Rückmeldungen, umfassende Beratung und völlige Transparenz im gesamten Prozess.
Was mich besonders beeindruckt hat, war die pragmatische und gleichzeitig menschliche Art von Herrn Reinhart und seinem Team, insbesondere Herr Müller. Sie nahmen mir sämtliche administrative Arbeit ab, kümmerten sich eigenständig um alle Unterlagen und organisierten den Verkaufsprozess höchst effizient. Das digitale Bildermanagement war modern und unkompliziert.
Der Verkauf ging deutlich schneller über die Bühne als erwartet, und das zu meiner vollsten Zufriedenheit. Am Ende zog eine sympathische junge Familie mit Kinder in die Wohnung ein - ein perfektes Happy End!
Das Team hat mich nicht nur fachlich überzeugt, es punktet auch menschlich auf der ganzen Linie. Wer seine Immobilie in kompetente und vertrauenswürdige Hände geben möchte, ist bei ihnen goldrichtig. Eine klare 5-Sterne-Empfehlung!
Ein besonders herzliches Dankeschön geht an Herrn Müller für seinen außerordentlichen Einsatz und seine stets freundliche und kompetente Betreuung während des gesamten Verkaufsprozesses!
Profilbild von „Öznur B.“
Öznur B.
17:10 10 Jan 25
Wow! Herr Reinhart hat mich als Mieter rundum beraten und super Tipps gegeben, was für ein hervorragender Service und eine tolle Geste! Vielen lieben Dank!!
Profilbild von „Lorenz K.“
Lorenz K.
10:39 09 Jan 25
Ein sehr kompetentes Team. Herr Reinhart und Herr Müller waren stets zuverlässig, freundlich und standen mit konstruktiven Vorschlägen zur Seite. Die Vermietung der Wohnung ging relativ schnell und die vertraglich Abwicklung wurde zu meiner vollsten Zufriedenheit durchgeführt. Wirklich zu empfehlen!
Profilbild von „Sieglinde T.“
Sieglinde T.
14:04 07 Jan 25
Profilbild von „Sophia M.“
Sophia M.
10:38 07 Jan 25
Sehr professionelle Abwicklung und top Erreichbarkeit. Rundum zufrieden!
Profilbild von „Georg B.“
Georg B.
11:22 14 Nov 24
Die Beratung und Abwicklung des Wohnungsverkaufs war einwandfrei. Herr Müller hat den Verkauf kompetent, zügig und stets zuvorkommend abgewickelt. Wir waren sehr zufrieden und können ihn wärmstens weiterempfehlen.
Profilbild von „Marita N.“
Marita N.
17:26 21 Oct 24
Die Zusammenarbeit war hervorragend. Eine äußerst kompetente, professionelle sowie stets freundliche Beratung und Hilfe, die wichtig für uns war, weil wir in Norddeutschland wohnen und unsere im weit entfernten Nürnberg gelegene Wohnung verkauft haben. Wir würden Herrn Reinhart und Herrn Müller jederzeit wieder beauftragen und empfehlen beide uneingeschränkt weiter.

Hinweis zur Echtheit von Bewertungen:
Die hier veröffentlichten Bewertungen stammen von Personen, die unsere Dienstleistungen auf Portalen von Dritten bewertet haben. Eine Prüfung der Echtheit kann derzeit nicht sicher gestellt werden, da die bewertenden Personen teilweise unter Synonymen diese auf den Seiten von Dritten hinterlassen. 


Jetzt Kontaktanfrage stellen


Diese Immobilie anfragen