Traumhafte Loft Wohnung in toller Nordstadt Lage

Traumhafte Loft Wohnung in toller Nordstadt Lage

649.000 € 

ca. 135 m² Wfl. 

Beschreibung:

Die angebotene Wohnung befindet sich im Nürnberger Stadtteil „Gärten hinter der Veste“ in einem Mehrfamilienhaus im ruhig gelegenen Rückgebäude.

Das Gebäude wurde um 1900 errichtet und steht unter Ensembleschutz. In den Jahren 2014/2015 erfolgte eine Sanierung des Rückgebäudes.

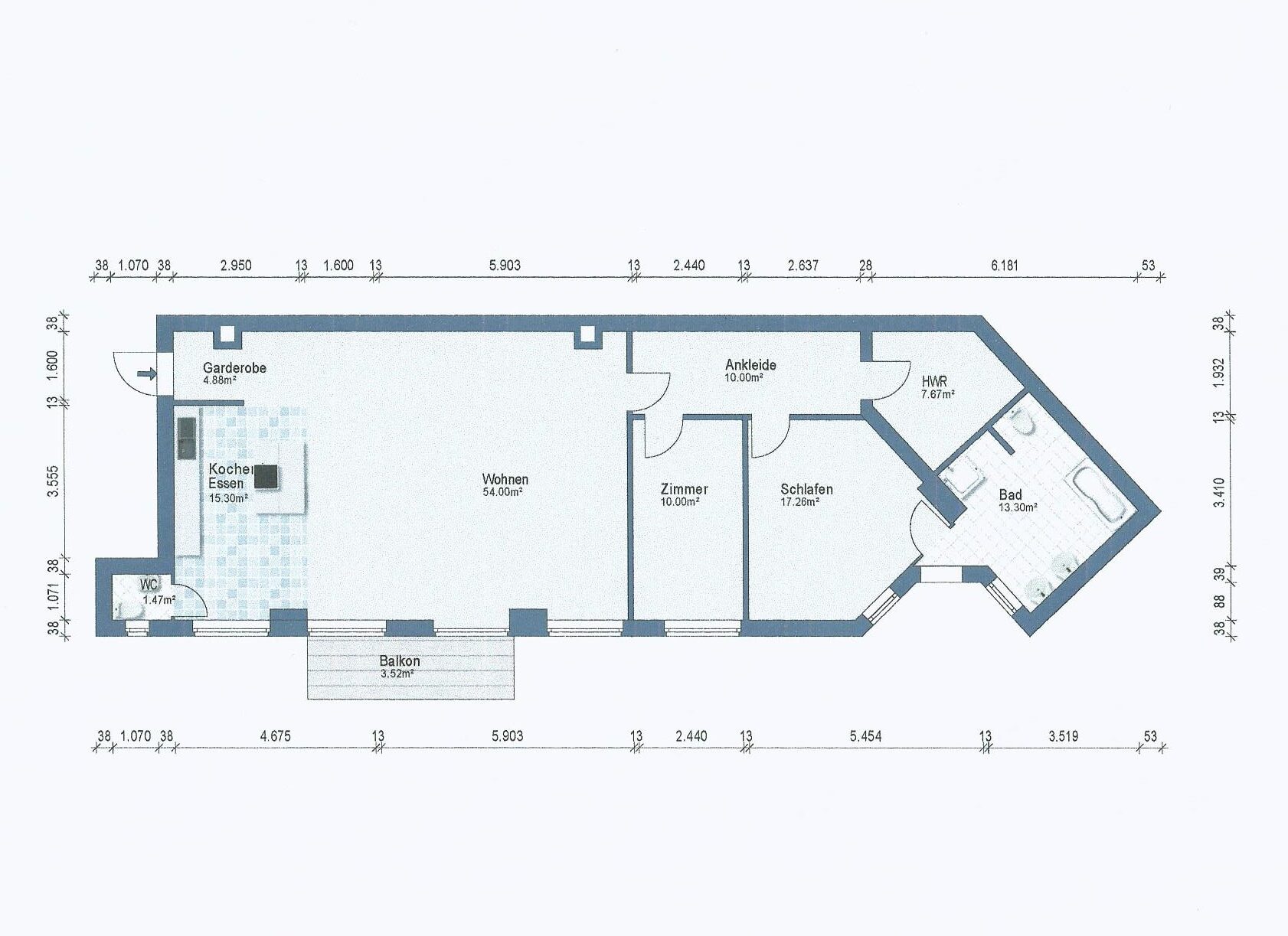
Die Wohnung verfügt über einen modernen Grundriss mit Loftcharakter und zeichnet sich durch hohe Decken sowie eine offene Gestaltung des Wohn- und Essbereichs aus.

Der großzügige loftartige Wohnbereich mit Kochinsel verfügt als weiters Highlight über einen modernen offenen Kamin für eine behagliche Holzbefeuerung..

Der Küchenbereich ist mit einer Kochinsel sowie einer Einbauküche der Marke Allmilmö inklusive Markengeräten ausgestattet. Darüber hinaus steht ein separates Gäste-WC zur Verfügung. Das Schlafzimmer ist mit einem großzügigen Bad en Suite verbunden, das unter anderem eine eingelassene Badewanne umfasst.

Ein Aufzug ist vorhanden. Die Lage innerhalb des Innenhofs gewährleistet eine ruhige Wohnatmosphäre.

Die Raumaufteilung gliedert sich in Garderobe, Kochen/Essen, Wohnen, WC, Balkon, Flur/Ankleide, Zimmer, Hauswirtschaftsraum, Schlafen sowie Bad en Suite.

Die Beheizung erfolgt über eine Gas-Etagenheizung. Das monatliche Hausgeld beträgt gemäß Wirtschaftsplan 2026 circa 456 € inklusive Heizkosten. Die monatliche Zuführung zur Instandhaltungsrücklage beläuft sich gemäß Wirtschaftsplan 2025 auf rund 39 €.

Die Wohnung ist aktuell vermietet und erzielt eine jährliche Grundmiete ohne Nebenkosten von 20.520 €.

Die U-Bahn-Station „Kaulbachplatz“ ist fußläufig in etwa 90 Metern erreichbar.

Merkmale & Vorteile:

  • Tolle Nordstadt Lage in Gärten hinter der Veste in einem Mehrfamilienhaus im Rückgebäude

  • Das Baujahr ist circa 1900

  • Das Objekt wurde circa 2014/15 saniert

  • Das Objekt steht unter Denkmalschutz (Ensembleschutz)

  • Moderne Wohnung mit Loftcharakter

  • Aufzug vorhanden

  • Ruhige Innenhof Lage

  • Küche mit Kochinsel der Marke Allmilmö mit Markengeräten

  • Offenes Wohnen/Loft mit herrlichem offenen Kamin

  • Separates Gäste WC

  • Hohe Decken

  • Großzügiges Bad en Suite mit eingelassener Badewanne

  • Die Wohnung ist aktuell vermietet (Grundmiete: 20.520 €/Jahr)

  • U-Bahn Stelle „Kaulbachplatz“ fußläufig (circa 90 Meter) erreichbar

  • Die Beheizung erfolgt über eine Gas Etagenheizung

Aufteilung:

  • Wohnloft mit offner Küche und Balkonzugang
  • Balkon
  • Garderobe
  • Gäste WC
  • Arbeits- Kinderzimmer
  • Schlafzimmer mit direktem Badzugang
  • Bad
  • Ankleide
  • Hauswirtschaftsraum

Anbindung/Lage:

Die angebotene Wohnung befindet sich in der Friedrichstraße 59 im gefragten Nürnberger Stadtteil Gärten h. d. Veste, einer beliebten innenstadtnahen Wohnlage mit gewachsener Struktur. Die Umgebung ist geprägt von attraktiven Altbauten, gepflegten Mehrfamilienhäusern und einer sehr guten Nahversorgung. In unmittelbarer Nähe liegt der Friedrich-Ebert-Platz mit zahlreichen Einkaufsmöglichkeiten, Cafés, Ärzten und Dienstleistern. Ebenfalls schnell erreichbar ist der nah gelegene Kobergerplatz, der mit seinem beliebten Wochenmarkt zusätzliche Aufenthaltsqualität und kurze Wege für den täglichen Bedarf bietet.

Die Anbindung an den öffentlichen Nahverkehr ist hervorragend. In fußläufiger Entfernung befinden sich die U-Bahn-Stationen U-Bahnhof Kaulbachplatz wodurch eine schnelle Verbindung in die Nürnberger Innenstadt, zum Hauptbahnhof und in weitere Stadtteile gewährleistet ist. Ergänzend verkehren mehrere Bus- und Straßenbahnlinien im Umfeld.

Auch mit dem PKW besteht eine zügige Anbindung an den innerstädtischen Ring sowie die überregionalen Verkehrsachsen. Die Lage vereint damit urbanes Wohnen mit ausgezeichneter Infrastruktur und hoher Lebensqualität.

Lage

Sie sehen gerade einen Platzhalterinhalt von Google Maps. Um auf den eigentlichen Inhalt zuzugreifen, klicken Sie auf die Schaltfläche unten. Bitte beachten Sie, dass dabei Daten an Drittanbieter weitergegeben werden.

Mehr Informationen

Was unsere Kunden über uns berichten

Profilbild von „Andreas B.“
Andreas B.
10:01 02 Mar 26
Der faire Makler wird seinem Namen wahrlich gerecht. Die Herren Reinhart und Müller haben uns in der gesamten Zeit vom 1.Termin bis zum Abschluss bestens betreut. Absolut professionell, kompetent, zuverlässig und freundlich. Klare Weiterempfehlung!
Profilbild von „Reinhard K.“
Reinhard K.
13:54 27 Feb 26
Hervorragende Betreuung und Beratung. Immobilienmakler Dipl.-Ing. (FH) Christian Reinhart hat uns definitiv sehr geholfen, unsere Erwartungen zu erfüllen. 5 Sterne!
Profilbild von „Lukas S.“
Lukas S.
08:24 24 Feb 26
In kurz:
Bisher einer der besten Makler. Klare Empfehlung für Nürnberger!

In lang:
Ich habe nun nicht so umfangreiche Erfahrungen mit Maklern (bisher mit 9), aber bei 3 Maklern bin ich bis zum Kaufabschluss einer Immobilie gegangen und ich bin mit obigen Maklerbüro für Nürnberg vollstens zufrieden! Sowohl im Erstkontakt als auch der nachfolgenden Kommunikation war Herr Müller sehr schnell und kompetent unterwegs. Fragen wurden prompt beantwortet wie auch das Einholen von separaten Dokumenten. Die Dokument-Zusammenstellung im Vorfeld zum Immobilienkauf war auch ideal und die gesamte Begleitung bis zum Notar (und sogar darüber hinaus) verlief reibungslos. Was bleibt da noch zu sagen? Wenn ein Makler in Nürnberg, dann dieser!
Profilbild von „Luisa Z.“
Luisa Z.
14:30 08 Feb 26
Herr Lucas Müller war der vermittelnde Makler für das Haus, das wir im vergangenen Jahr gekauft haben. Von Anfang an hat er einen sehr kompetenten und freundlichen Eindruck gemacht. Auf Anfrage haben wir immer zügig und zuverlässig eine Antwort erhalten, die Kommunikation war freundlich und transparent. Wir haben uns von der Besichtigung bis zur Schlüsselübergabe stets gut aufgehoben gefühlt. Wir sprechen daher eine uneingeschränkte Empfehlung aus und bedanken uns sehr für die angenehme Zusammenarbeit.
Profilbild von „Dejan Z.“
Dejan Z.
10:42 13 Jan 26
Alles war super, sehr verantwortungsvoll und immer hilfsbereit. Alles verlief schnell und ohne Schwierigkeiten. Alles, was von Seiten des Maklers nötig war, wurde in kürzester Zeit erledigt. Von Herzen kann ich ihn/sie weiterempfehlen.
Profilbild von „A R“
A R
14:04 08 Jan 26
Profilbild von „Oktavian O.“
Oktavian O.
05:13 12 Dec 25
Die Zusammenarbeit mit Herrn Reinhart war vom ersten Moment an ausgezeichnet. Die Begleitung war stets professionell, verständlich und äußerst zuverlässig. Hier merkt man: Service macht den Unterschied. Besonders beeindruckt hat mich, dass selbst nach einigen Jahren noch unkompliziert und mit echter Unterstützung auf meine Nachfragen eingegangen wurde. So etwas findet man heutzutage wirklich selten. Klare Empfehlung – ein Makler, der sich durch außergewöhnliche Kundenorientierung und nachhaltige Betreuung auszeichnet.
Profilbild von „Deon T.“
Deon T.
04:44 19 Oct 25
Christian und sein Team waren während des gesamten Prozesses absolut fantastisch. Wir standen in regelmäßigem Kontakt und sie standen mir jederzeit für alle Fragen zur Verfügung. Als Englischsprecher unterstützte mich Christian beim Übersetzen und Erklären aller Dokumente, um sicherzustellen, dass ich stets auf dem Laufenden war. Ich kann Herrn Christian Reinhart und sein Team wärmstens empfehlen.
Profilbild von „Sebastian T.“
Sebastian T.
19:56 18 Oct 25
Fair, ehrlich, freundlich und jederzeit offen für Hilfe und Unterstützung. Besser hätte es nicht laufen können - vielen Dank!
Profilbild von „Anonym A.“
Anonym A.
10:10 24 Jul 25
Volle 5 Sterne für ein sehr aufklärendes Telefonat. Ich habe eine Immobilie über einen anderen Immobilienmakler gekauft und die Abwicklung bzw. der Ablauf läuft nicht sehr rosig. Es sind zumindest eine Menge ungeklärter Fragen offen. Nichtsdestotrotz wurden mir alle Fragen auch bezüglich Risiken und Abläufe genau erläutert. Das Gespräch hat gute 15 Minuten gedauert und ich hatte das Gefühl, dass sich hier Zeit und Mühe gemacht wird mir weiterzuhelfen, obwohl die Immobilie über einen anderen Makler erworben wurde. Deswegen volle 5 Sterne. In Zukunft komme ich gerne vorbei bezüglich Kauf und Verkauf von Immobilien. Vielen Dank 👍
Profilbild von „Philipp T.“
Philipp T.
18:39 11 Jul 25
Die Zusammenarbeit mit Lucas Müller war rundum perfekt. Er ist nicht nur fachlich absolut kompetent, sondern es hat auch Menschlich einfach super gepasst. Man merkt sofort, dass er seinen Job mit Leidenschaft macht und dabei nie den Blick fürs Gegenüber verliert.

Er hat sich wirklich Zeit genommen, uns alles verständlich zu erklären und ist auf jede Frage geduldig eingegangen. Dabei war er stets professionell, freundlich und gleichzeitig angenehm unaufdringlich - was in der heutigen Zeit leider immer seltener wird. Wir haben uns zu jeder Zeit gut beraten und wohlgefühlt – genau so, wie man sich das wünscht.

Wenn es um Immobilien geht, würden wir jederzeit wieder mit Lucas Müller zusammenarbeiten. Eine klare Empfehlung!
Profilbild von „Arnaud R.“
Arnaud R.
09:52 10 Jul 25
Profilbild von „Florian H.“
Florian H.
14:06 14 Jun 25
Top Beratung, Super Unterstützung in allen Anliegen, sehr fair und freundlich. Tolle Betreuung vom Beginn bis zum Abschluss. Sehr empfehlenswert (Unser Makler war Hr. Lucas Müller).
Profilbild von „Gerda G.“
Gerda G.
11:07 14 Jun 25
Vielen Dank an alle Mitarbeiter des Unternehmens, die Zusammenarbeit, der Verlauf des Verkaufs der Immobilie, alles unkompliziert, vom Anfang bis zum Ende. Es war eine harmonische und zuverlässige Zusammenarbeit. Ich kann dieses Unternehmen nur als positiv empfehlen!
Profilbild von „Martina S.“
Martina S.
13:12 03 Jun 25
Im vergangenen Sommer 2024 hatte ich mit Herrn Makler Reinhart zu tun. Obwohl er wußte, dass er mit mir kein Geschäft machen würde, hat er sich mehrmals Zeit genommen, meine Fragen zu besprechen und zu diskutieren.Vielen Dank dafür!
Profilbild von „Cristmers“
Cristmers
08:45 23 May 25
Die Zusammenarbeit mit Herrn Reinhart (November 24 bis Januar 25) war von Anfang an geprägt von Aufrichtigkeit, Zuverlässigkeit, Freundlichkeit und Kompetenz. Die Wohnung konnte sehr schnell vermittelt werden und auch Herr Müller war stets erreichbar und offen.
Der ganze Ablauf war absolut strukturiert und so konnte mit der Vermarktung sehr rasch begonnen werden. Rückfragen wurden zeitnah beantwortet und Termine konnten flexibel vereinbart werden. Es wurde immer auf Fairness für alle Parteien geachtet.
Ich war rundum zufrieden und kann Herrn Reinhart nur empfehlen.
Profilbild von „susi J.“
susi J.
16:07 11 May 25
Sehr empfehlenswert. Wir waren mehr als zufrieden mit der Beratung. Das half uns eine
Wichtige Entscheidung zutreffen.
Vielen Dank dafür .
Jakupi
Profilbild von „Gustav G.“
Gustav G.
13:15 08 May 25
Sehr freundliche und kompetente Beratung. Auf jeden Fall weiterzuempfehlen!
Profilbild von „Renate W.“
Renate W.
10:51 15 Apr 25
Sehr nettes informatives Gespräch - ich bedanke mich herzlich für ihre Hilfe
Profilbild von „Victoria V.“
Victoria V.
06:14 08 Apr 25
Herr Christian Reinhard hat uns mit seiner professionellen, kompetenten und stets zuverlässigen Arbeitsweise überzeugt.
Auch Herr Müller hat uns unterstützt und dabei alles verständlich und geduldig erklärt. Beide standen uns jederzeit zur Seite, waren sehr gut erreichbar und haben uns mit großem Engagement durch den gesamten Prozess begleitet.

Die Zusammenarbeit war angenehm, strukturiert und von großem Vertrauen geprägt.
Wir sind rundum zufrieden und empfehlen Herrn Reinhard und Herrn Müller uneingeschränkt weiter.
Profilbild von „Katrin F.“
Katrin F.
11:00 22 Mar 25
Es ist wunderbar solche Profis an der Seite zu wissen, die so umfassend betreuen, geduldig Fragen beantworten und durch den Verkaufsprozess begleiten. Verlässlich, vertrauenswürdig - und freundlich. Danke.
Profilbild von „Sebastian“
Sebastian
20:31 05 Mar 25
Ich hatte eine telefonische Beratung mit Herrn Reinhart und war schwer begeistert von seiner Expertise. Er hat sich viel Zeit genommen, mir als Auswärtiger all meine Fragen zum Nürnberger Immobilienmarkt fundiert zu beantworten. Ich konnte von seiner langjährigen Erfahrung sehr profitieren. Gerne wieder!
Profilbild von „U. R.“
U. R.
13:03 11 Feb 25
Er hat mir, obwohl er für das Gebiet, wo mein Objekt steht, nicht zuständig sein kann, eine sehr hilfreiche Auskunft erteilt
Vielen Dank
Profilbild von „Hans L.“
Hans L.
16:31 27 Jan 25
Ich muss den Herren Reinhart und Müller ein großes Lob aussprechen, für ihre Professionalität, Ehrlichkeit, und ihre Hilfe, meine Immobilie erfolgreich zu verkaufen.
Die Kommunikation zwischen uns war vorbildlich, und von Anfang an fühlte ich mich willkommen.
Vom ersten Gespräch, bis zum reibungslosen und schnellen Abschluß war ich in guten Händen.
Ich empfehle Herrn Reinhart und seinen Kollegen Herrn Müller jederzeit weiter!!!
Vielen Dank für Alles
Profilbild von „Linda R.“
Linda R.
17:33 10 Jan 25
Absolute Spitzenleistung von Immobilienmakler Reinhart und seinem Mitarbeiter Herrn Müller beim Verkauf meiner Eigentumswohnung! Von Anfang an spürte man die jahrelange Erfahrung und Professionalität des Teams. Die Kommunikation war durchgehend erstklassig - schnelle Rückmeldungen, umfassende Beratung und völlige Transparenz im gesamten Prozess.
Was mich besonders beeindruckt hat, war die pragmatische und gleichzeitig menschliche Art von Herrn Reinhart und seinem Team, insbesondere Herr Müller. Sie nahmen mir sämtliche administrative Arbeit ab, kümmerten sich eigenständig um alle Unterlagen und organisierten den Verkaufsprozess höchst effizient. Das digitale Bildermanagement war modern und unkompliziert.
Der Verkauf ging deutlich schneller über die Bühne als erwartet, und das zu meiner vollsten Zufriedenheit. Am Ende zog eine sympathische junge Familie mit Kinder in die Wohnung ein - ein perfektes Happy End!
Das Team hat mich nicht nur fachlich überzeugt, es punktet auch menschlich auf der ganzen Linie. Wer seine Immobilie in kompetente und vertrauenswürdige Hände geben möchte, ist bei ihnen goldrichtig. Eine klare 5-Sterne-Empfehlung!
Ein besonders herzliches Dankeschön geht an Herrn Müller für seinen außerordentlichen Einsatz und seine stets freundliche und kompetente Betreuung während des gesamten Verkaufsprozesses!
Profilbild von „Öznur B.“
Öznur B.
17:10 10 Jan 25
Wow! Herr Reinhart hat mich als Mieter rundum beraten und super Tipps gegeben, was für ein hervorragender Service und eine tolle Geste! Vielen lieben Dank!!
Profilbild von „Lorenz K.“
Lorenz K.
10:39 09 Jan 25
Ein sehr kompetentes Team. Herr Reinhart und Herr Müller waren stets zuverlässig, freundlich und standen mit konstruktiven Vorschlägen zur Seite. Die Vermietung der Wohnung ging relativ schnell und die vertraglich Abwicklung wurde zu meiner vollsten Zufriedenheit durchgeführt. Wirklich zu empfehlen!
Profilbild von „Sieglinde T.“
Sieglinde T.
14:04 07 Jan 25
Profilbild von „Sophia M.“
Sophia M.
10:38 07 Jan 25
Sehr professionelle Abwicklung und top Erreichbarkeit. Rundum zufrieden!
Profilbild von „Georg B.“
Georg B.
11:22 14 Nov 24
Die Beratung und Abwicklung des Wohnungsverkaufs war einwandfrei. Herr Müller hat den Verkauf kompetent, zügig und stets zuvorkommend abgewickelt. Wir waren sehr zufrieden und können ihn wärmstens weiterempfehlen.
Profilbild von „Marita N.“
Marita N.
17:26 21 Oct 24
Die Zusammenarbeit war hervorragend. Eine äußerst kompetente, professionelle sowie stets freundliche Beratung und Hilfe, die wichtig für uns war, weil wir in Norddeutschland wohnen und unsere im weit entfernten Nürnberg gelegene Wohnung verkauft haben. Wir würden Herrn Reinhart und Herrn Müller jederzeit wieder beauftragen und empfehlen beide uneingeschränkt weiter.

Hinweis zur Echtheit von Bewertungen:
Die hier veröffentlichten Bewertungen stammen von Personen, die unsere Dienstleistungen auf Portalen von Dritten bewertet haben. Eine Prüfung der Echtheit kann derzeit nicht sicher gestellt werden, da die bewertenden Personen teilweise unter Synonymen diese auf den Seiten von Dritten hinterlassen. 


Jetzt Kontaktanfrage stellen


Diese Immobilie anfragen